WORK WITH US WORK CURRENT
Modern kitchen with white slim shaker cabinets, marble island, and backsplash in a Chelsea, NYC duplex by Rauch Architecture.
Guide To Apartment Renovation Costs in NYC
Wondering how much your condo or co-op renovation in NYC will cost? As both architects and design-builders, we get asked this question all the time. Although the costs can vary based on a number of factors, we use a simple pricing model that helps break down the costs of construction for all of our projects. Read more about our pricing model here.
Minimalist corridor with a trimless door and herringbone wood flooring in a Chelsea, NYC duplex by Rauch Architecture.
MODERN TRIM DETAILS
Are you looking for ways to achieve a contemporary, minimal, clean aesthetic for your apartment renovation in NYC? As we just wrapped up our most recent co-op renovation in Chelsea, we wanted to take the opportunity to discuss one of our favorite modern door trim details: Flush Trimless Doors.
White kitchen with slim shaker cabinets, marble countertops, and backsplash, plus a glass cabinet display in a Chelsea, NYC duplex by Rauch Architecture.
May 7, 2024
Our Landmarked Chelsea Duplex Co-op renovation is now complete.
Spacious living room in Upper East Side co-op featuring a large window, traditional fireplace, mid-century modern chairs, and a decorative rug, designed by Rauch Architecture.
March 15, 2024
Our gut renovation of a pre-war co-op on East 73rd street is now complete.
Curved staircase with wooden steps and dark handrails, a wet bar nook, and intricate ceiling plasterwork in a Rauch Architecture-designed Park Slope home.
How to combine apartments in NYC
Are you feeling the need for more space? One of the best ways to gain space for your family is to expand your apartment either horizontally or vertically by combining with other units in your building. Here are a few things to think about when considering an apartment combination project.
October 19, 2023
Our Park Slope Townhouse Combination project featured in Brownstoner's Insider Column
October 16, 2023
Metal cladding rainscreen in progress on our Park Slope Rooftop Addition. Read more about the benefits of rainscreen installations inside.
October 13, 2023
Wondering how to fix a leaky NYC townhouse basement from the inside? Here are a few tips from our recent Upper Manhattan Townhouse Renovation to keep all that water out!
Modern kitchen interior with exposed brick wall, natural wooden cabinetry, white subway tile backsplash, and an intimate dining area with woven chairs.
October 13, 2023
Our Tribeca Townhouse Renovation currently featured in Tribeca Citizen's "Loft Peeping" series
Elevated view of historic brick townhouses on a cobblestone street of Harrison St in Tribeca, juxtaposed against modern high-rises and NYC cityscape in the background.
October 8, 2023
Our Federal Style townhouse renovation in Tribeca is complete! Read more about the history of this iconic block housing the best preserved collection of Federal Style architecture in NYC inside.
September 23, 2023
Upper Manhattan Townhouse project featured in Dwell Magazine
September 22, 2023
Before/After: Behind the scenes of our recently completed Upper Manhattan Townhouse project....
September 4, 2023
Have you ever wondered why your townhouse floors are sagging, creaking, or uneven? Matt and Therese were on site at our Long Island City renovation to show you why. Read more inside.
September 1, 2023
Our Tribeca townhouse project is now complete, with photography in progress...
August 31, 2023
We had fun on site painting out a "full scale" floor plan for a client walkthrough at our Historic Landmarked Long Island City Townhouse renovation!
July 6, 2023
Material mockup on site for a custom fireplace surround
September 27, 2022
Behind the scenes of a historic Park Slope townhouse stair install...
June 25, 2021
047: Broadway Loft, Tribeca apartment renovation, final photography complete
June 24, 2021
047: Broadway Loft, Tribeca apartment renovation, final photography complete
June 24, 2021
047: Broadway Loft, Tribeca apartment renovation, final photography complete
June 23, 2021
047: Broadway Loft, Tribeca apartment renovation, final photography complete
June 22, 2021
047: Broadway Loft, Tribeca apartment renovation, final photography complete
June 21, 2021
047: Broadway Loft, Tribeca apartment renovation, final photography complete
May 9, 2021
058: The Acre restaurant, Ridgewood, NYC storefront renovation, oblique view
March 26, 2021
048: Marble Hill Townhouse; scribble sketch
March 18, 2021
040: Shopping for stone samples for our exterior cladding at the Lake Keowee House.
March 12, 2021
064: Work starting soon in Park Slope, in a building designed by C.P.H. Gilbert and completed in 1890. Most of the entire block was designed by Gilbert, and features an eclectic range of buildings with Romanesque, Dutch, and Queen Anne features.
March 10, 2021
040: Lake Keowee, interior concept rendering
March 5, 2021
064: Park slope renovation, bathroom study view
March 3, 2021
036: Really love how this little detail came together - it started as a minor miscalculation when the footers for the steel post were placed by the subcontractor a bit too far from the stair, but we ended up working out an interesting way for the handrail to return back to the post anyway. Beautiful steelwork all the way around by Todd Rosenbaum Metalworks.
February 27, 2021
066: In-progress renovation shots of our rooftop addition to an old farmhouse in Upstate NY. Here you can see the old post-and-beam structure, with the newer platform framing of the raised roof above it. We only gained a few feet, but it really makes a world of difference.
February 26, 2021
074: Early concept sketch for our upcoming Bronx townhouse renovation
February 18, 2021
036: Custom compressor exhaust grille? No problem - a skilled carpenter with a drill can make it happen
February 10, 2021
040: Thrilled for site work to be starting this week for our new custom home on Lake Keowee, inspired by local vernacular farmhouse design and Shaker details. Coming soon!
February 9, 2021
064: Park Slope Townhouse renovation; kids' room study nook
January 19, 2021
045: Ridgewood NYC apartment interior renovation
January 15, 2021
045: Ridgewood NYC apartment interior renovation, kitchen view showing zellige tile backsplash
January 3, 2021
045: Ridgewood NYC apartment interior renovation; kitchen view showing the zellige tile backsplash and the Bertazzoni range
December 22, 2020
045: Ridgewood NYC apartment interior renovation - kitchen detail
November 22, 2020
045: View from master bedroom to ensuite bathroom, showing two-tone gray molding scheme
November 22, 2020
045: Bathroom interior view for our Ridgewood NYC apartment renovation
November 15, 2020
045: Ridgewood NYC apartment interior living room, showing arched opening and pocket doors separating the office area
October 31, 2020
045: Ridgewood NYC apartment renovation, kitchen view
October 22, 2020
045: Ridgewood NYC Apartment Renovation
October 1, 2020
045: Forest Ave Apartment Renovation Ridgewood
October 1, 2020
045: Ridgewood Forest Ave Apartment Interior Renovation; Kitchen View
September 21, 2020
045: Ridgewood Forest Ave Apartment: Bathroom view
July 21, 2020
036: Exterior storefront work at Rolo's restaurant starting to take shape and looking great! As a Landmarked building, we wanted to replicate as many of the details as we possibly could, so based the new brackets off of the existing ones we found during demo.
July 1, 2020
058: New custom steel door and storefront for The Acre restaurant in Ridgewood. This door was custom built by Todd Rosenbaum Metalworks.
June 18, 2020
048: Shopping for steel at the steel yard
June 11, 2020
042: Ridgewood Coworking Space, view of bar area. Designed in collaboration with Kermit Westergaard as Designer, Elliptical Construction as Builder, Rauch Architecture as Design Architect.
May 15, 2020
064: Early concept rendering for an upcoming renovation in Park Slope, Brooklyn.
April 30, 2020
000: During lockdown, we've been thinking a lot about past travels - including this magical trip to Suzhou, almost a year ago today. Looking forward to being able to do this again soon.
April 17, 2020
036: A few quick molding mockups for Rolo's Restaurant as we begin to trim out the space. Number three was the winner!
April 15, 2020
036: Concept rendering for Rolo's Restaurant storefront, signage, and awning. Branding and signage design by Drew Heffron / Practical People.
April 1, 2020
036: Dining table mock-up at the job site for Rolo's restaurant. Seeing the details at full scale really helps ensure the final product fits just right.
March 18, 2020
063: We ended up "sistering" the old cracked floor joists for our apartment renovation in Harlem with 2X10's nailed to the old joists in a 12" pattern.
March 12, 2020
063: Upon fully demolishing the ceiling at our apartment renovation in Harlem, we found a series of large cracks in the existing heavy timber joists. The cracks tended to be in locations where there was a prior opening for a mechanical chaise, or a chimney, to the floor above.
March 3, 2020
048: Early concept rendering for a new steel front door for a townhouse renovation in Marble Hill, Manhattan
February 15, 2020
065: Early sketch for a renovation to a home on Summit Drive in Greenville, SC
February 2, 2020
Demolition complete for our new interior renovation in a Harlem Co-op building - more details to come!
January 11, 2020
036: Another study view of Rolo's restaurant in Ridgewood
January 4, 2020
062: River Vale, New Jersey Farmhouse renovation set to begin
December 20, 2019
036: Bar interior rendering for Rolo's Restaurant, coming soon to Ridgewood, NY
November 27, 2019
048: Marble Hill Townhouse kitchen renovation, garden view
November 25, 2019
042: Custom table design for a coworking space in Ridgewood, NYC (part II)
November 20, 2019
048: Marble Hill NYC Townhouse, concept rendering
November 18, 2019
061: Fair Lawn Renovation, detail drawings
November 14, 2019
058: Sketch for a storefront in Ridgewood, NYC
November 11, 2019
048: Marble Hill NYC Townhouse renovation, early kitchen concept view
November 5, 2019
044: East Village Apartment Renovation, kitchen view or white oak millwork. Collaboration with Justin Nguyen.
November 5, 2019
044: East Village Walkup Apartment interior renovation - living room view to kitchen. Collaboration with Justin Nguyen.
November 5, 2019
044: East Village Walkup apartment renovation complete! Wonderful collaboration with Justin Nguyen.
November 1, 2019
044: East Village Walkup apartment renovation nearing completion, bathroom design. Collaboration with Justin Nguyen
October 24, 2019
044: East Village Walkup, kitchen detail. Collaboration with Justin Nguyen
October 5, 2019
044: East Village Walkup apartment renovation, kitchen millwork view, collaboration with Justin Nguyen
October 1, 2019
059: Porcelain Cafe, Ridgewood NYC, bar view detail.
September 25, 2019
036: Rolo's Restaurant staircase design, coming soon to Ridgewood NYC.
September 17, 2019
046: Ridgewood NYC Apartment Renovation, entryway details
September 16, 2019
044: East Village walkup apartment renovation nearly complete!
September 12, 2019
046: Ridegwood NYC Apartment Renovation, Bathroom Details
August 15, 2019
046: Ridgewood apartment renovation: kitchen view
August 15, 2019
046: Ridgewood Apartment Renovation: complete and ready for move-in!
May 6, 2019
046: Black --> Red --> Yellow --> Black / Ridgewood apartment renovation / Interior elevations
May 3, 2019
048: Existing bathroom at our Marble Hill townhouse renovation. I think we'll leave this one as is...
April 27, 2019
040: Lake Keowee lakehouse concept sketch
April 26, 2019
048: Sketch for a townhouse (I think?)
April 24, 2019
000: At the studio / research + drawing
April 22, 2019
048: Notes from a site visit for our new townhouse renovation in Marble Hill, NYC.
March 25, 2019
050: The Tardis. Much like the exterior / interior dialectic of the famous Dr. Who spacecraft, the humble exterior of this little Cape Cod belies an interior that contains 7 (!) bedrooms and 8 (!) bathrooms. Our goal for the project is to try to realign the exterior and interior in a way that makes at least a little bit more sense.
March 15, 2019
042: Ridgewood coworking space custom collapsible table concept
March 13, 2019
040: Lake house concept sketch, #wip
March 11, 2019
032: Farmhouse kitchen and dining room in our home design in Greenwood County, South Carolina
March 7, 2019
032: South Carolina Farmhouse, Entry view
February 27, 2019
032: South Carolina farmhouse, inspired by the shakers
February 24, 2019
In the zone...
February 22, 2019
040: #organized #file #layers #wip
February 20, 2019
040: Lake Keowee lake house concept sketch
February 15, 2019
032: View from the dining room to the kitchen
February 13, 2019
042: Custom collapsible table for a coworking space
February 12, 2019
049: New project in River Vale, NJ. Excited to start work transforming this funky little ranch house!
February 11, 2019
040: Keowee Lake House, study model, view from the lake
February 5, 2019
032: Farmhouse floor plan in progress...
January 7, 2019
036: Fully demo'ed, restaurant coming soon.
December 20, 2018
017: Pigeonaire camping huts, section perspective
December 19, 2018
043: Jersey City Reno, signed and sealed
December 17, 2018
036: Ridgewood restaurant basement excavation / art installation
December 15, 2018
042: Coworking space great room
December 15, 2018
042: Coworking space in progress
November 27, 2018
Research document prepared by Matthew Rauch's students at the University of Tennessee on the history of workplace architecture. Fantastic work from a great group.
November 24, 2018
032: Sketches for a farmhouse
November 20, 2018
032: Under the porch canopy at our guest house project in South Carolina
November 12, 2018
036: Ridgewood landmark drawings
November 9, 2018
032: Guest house, plan
November 7, 2018
032: Guest house, interior view, #wip
November 5, 2018
036: Ridgewood restaurant materials studies and details
November 2, 2018
040: Necker Pointe Lane lakehouse, concept sketch
October 31, 2018
045: Cobble Hill Renovation; revised
October 29, 2018
042: Ridgewood coworking space; view of great room
October 26, 2018
045: Cobble Hill Renovation; Shaker-style shoe and coat rack in the new entry vestibule
October 22, 2018
042: Coworking axonometric rendering
October 18, 2018
032: Porches
October 17, 2018
036: Our application for a new restaurant in Ridgewood sailed through the NYC Landmarks Preservation Committee and the Department of Buildings in record time. Excited for construction to begin!
October 15, 2018
042: Ridgewood coworking space cafe rendering
September 28, 2018
036: Details for a historic preservation and restoration project in Ridgewood, Queens
September 27, 2018
040: Bourbon-ing the midnight oil...
September 26, 2018
017: Exterior view of camping huts for Pigeonaire, coming soon to Nantes, FR. Aluminum exterior version depicted.
September 25, 2018
038: Carrelet plan and section.
September 24, 2018
045: Section render through our Cobble Hill backyard renovation
September 21, 2018
032: Early concept rendering for a new home and guest house to be built on a 300-acre farm near Ware Shoals, South Carolina.
September 20, 2018
040: Early plan sketch for a new home to be built on Lake Keowee in South Carolina.
September 19, 2018
045: Revisions
September 18, 2018
038: Concept collage for a fishing carrelet on the Atlantic near Nantes, France.
September 17, 2018
044: East Village Walkup, building permit approved.
September 12, 2018
010: Stainless steel apron sink in our recently completed Hillsdale, NJ renovation.
September 11, 2018
036: Cellar level private dining room, study view
September 7, 2018
042: Coworking banquette schematics in progress
September 6, 2018
033: Site plan update
September 4, 2018
045: Cobble Hill apartment renovation, study view
August 31, 2018
042: Banquette and fireplace concept for a coworking space in Ridgewood.
August 29, 2018
038: Researching "Pêcheries" or "fishing cabins" for this lovely site along the coast near Nantes, France (photo from the 1960's). The dark rock towards the back is the proposed site for a new cabin to built in the coming months, pending Coast Guard approval. Excited to see the project take shape!
August 28, 2018
045: Notes from a Cobble Hill site visit
August 19, 2018
040: On site in South Carolina taping out the floor plan for a new custom home build
August 16, 2018
045: Onsite in Cobble Hill for a new apartment renovation and garden redesign
August 13, 2018
046: Ridgewood apartment reno, #wip
August 10, 2018
036: Flexible private dining room and restaurant expansion
August 9, 2018
024: Prefabricated office pods for a personal CNC company
August 8, 2018
031: Front bar and dining area for a new restaurant in Ridgewood
August 3, 2018
033: Permitting drawings for a landscape intervention for a Main Line Philly home.
August 2, 2018
031: Kitchen and dining room view for a new restaurant in Ridgewood
August 1, 2018
024: Prefab office pods
July 25, 2018
031: Interior rendering for a restaurant fitout in Ridgewood, Queens.
July 24, 2018
033: Conceptual site plan for a Main Line Philly home
July 10, 2018
036: Surveying Ridgewood
July 9, 2018
000: Stamps on stamps
July 6, 2018
000: Thrilled to have the opportunity to tour a modernist masterpiece, CSH #22 by Pierre Koenig from the Case Study House program. Truly a gem in Los Angeles.
June 28, 2018
000: Test prints
June 25, 2018
033: Detailing a rain garden and petanque court for a Main Line Philly home
June 21, 2018
024: Early concept version of our prefabricated modular office pods
June 9, 2018
032: Early concept sketch for a House with Three Views, to be built on a 300 acre family farm in South Carolina.
June 5, 2018
037: Work beginning on a new historical restoration project in Ridgewood, Queens
May 25, 2018
033: Main Line Philly site work; View of the petanque court and pavilion
May 23, 2018
031: Forest Avenue Restaurant, view from the street
May 22, 2018
033: Renovation of a Main Line Philly home, View from the street
May 19, 2018
036: Notes from a site survey....Excited to see a new restaurant take over this space in Ridgewood, Queens!
May 15, 2018
033: Creating a new backyard and driveway petanque court for a Main Line home in Bryn Mawr, PA
May 10, 2018
040: Rauch Architecture PLLC commisioned to design a new custom home on Lake Keowee near Seneca, South Carolina
May 6, 2018
033: Developing a site plan concept for a Main Line Philly home
May 3, 2018
033: Site work beginning this week for interior and exterior upgrades to a Main Line Philly bungalow
May 2, 2018
032: In-progress plans for a guesthouse
April 30, 2018
032: Diagram for a house on a farm
April 24, 2018
000: Office, 1:00 pm
April 23, 2018
003: Penthouse interior detail
April 20, 2018
032: Testing out views for a guesthouse on the farm
March 29, 2018
011: Sunset and ocean reflected in the windows of our house in Sag Harbor. Excited to see the project coming together!
March 25, 2018
032: Initial studies for a farmhouse in South Carolina
March 2, 2018
010: Hillsdale, NJ cape cod renovation taking shape
February 28, 2018
032: Site plan concept for a farmhouse in South Carolina
February 26, 2018
032: Early sketches for a farmhouse in South Carolina
February 22, 2018
000: Office, 11:45 am
February 21, 2018
000: Solving the diagram
February 15, 2018
017: Fabrication drawings for a ladder
February 14, 2018
034: Detailing a gate
February 9, 2018
000: Diagram
February 8, 2018
000: Working Drawing, Sol Lewitt, 1973
February 8, 2018
000: 20th Wire Piece, Agnes Martin, 1972
February 7, 2018
000: Bronx Floors, Gordon Matta-Clark, 1972
February 6, 2018
017: Hut detail sketch
February 6, 2018
017: Creating a minimal ladder stair for our campground project in Nantes, FR
February 6, 2018
017: Passenger Pigeon X: Tent structure camping pod version
February 5, 2018
017: Sketches for a tent
February 4, 2018
000: Onkel, Manfred Pernice, 1996
February 1, 2018
017: Passenger Pigeon X urban camping hut edge detail
February 1, 2018
000: Detail, Zimmer, Thomas Demand, 1996
February 1, 2018
005: Keowee Lake House rendering
January 31, 2018
000: Office, 4:00 pm
January 30, 2018
000: Office, Thomas Demand, 1995
January 29, 2018
000: Matthew Rauch invited to third year reviews at the University of Tennessee College of Architecture and Design
January 26, 2018
000: Lasercut leftovers by a student, Tyler Trent, Design Fundamentals II
January 17, 2018
000: Office pin up
January 15, 2018
1:07 PM
January 8, 2018
000: Office, 11:02 am
January 6, 2018
032: Rauch Architecture PLLC commissioned to design a modern farmhouse in South Carolina
January 5, 2018
000: Ohne Titel, Manfred Pernice, 1996
January 4, 2018
042: Ridgewood coworking space in progress
January 3, 2018
033: Custom corten steel gate for a Main Line house in Philadelphia
January 2, 2018
032: Early guest house concept
December 24, 2017
024: Modular office pods for a personal CNC company, designed to allow maximum flexibility for future growth
December 23, 2017
017: Camp-style bathroom perspective for an urban campground conversion in Nantes, France.
December 22, 2017
018: Client communication in the modern world
December 21, 2017
017: Passenger Pigeon X urban campground bathroom perspective
December 20, 2017
024: Modular office pods designed for a growing personal CNC company.
December 19, 2017
017: Bathroom elevation perspective for an urban campground garage conversion in Nantes, FR
December 17, 2017
017: Interior elevations inspired by marine architecture
December 12, 2017
000: Matthew Rauch to teach two design studios at the Univesity of Tennessee College of Architecture and Design in Knoxville, TN
December 11, 2017
024: Aerial view of potential configurations of modular office pods designed for a personal CNC machine company
December 5, 2017
031: Work beginning for a new restaurant project in Ridgewood, Queens - more details soon!
December 4, 2017
017: Section perspective through a camping hut designed for an urban campground in Nantes, FR
November 29, 2017
000: Matthew Rauch invited to first and second year final reviews at the University of Tennessee College of Architecture and Design
November 29, 2017
000: Matthew Rauch presents recent work at the University of Tennessee College of Architecture and Design
November 28, 2017
024: Plan concept for office pod arrangements for a growing personal CNC company
November 27, 2017
024: Modular office pods arranged to subdivide space inside a larger warehouse designed for a personal CNC company
November 21, 2017
000: Matthew Rauch invited to New York / Paris program final reviews at Columbia University GSAPP
November 21, 2017
024: Concept drawing for a modular office pod
November 21, 2017
000: People collage
November 20, 2017
024: Interior view of modular offices designed for a personal CNC machine company
November 20, 2017
017: Developing a prefabricated structural system for Passenger Pigeon X camping huts
November 19, 2017
011: Sag Harbor site work for new pool in progress
November 17, 2017
000: Splitting, Gordon Matta-Clark, 1974
November 17, 2017
017: Early concept rendering for our urban campground project in France
November 14, 2017
024: Early diagram study for our new office pod project
November 12, 2017
017: Making place
November 8, 2017
018: Weehawken, NJ loft renovation building permit approved. Construction set to begin.
November 7, 2017
017: Tea houses / tree houses
November 5, 2017
017: Inspiration 3
November 4, 2017
017: More inspiration
November 2, 2017
025: Rauch Architecture PLLC commissioned to develop feasibility study for townhouse renovation in the Bronx, NY
November 2, 2017
017: Naval kitchen and bath inspiration
November 1, 2017
017: Making a plan
October 31, 2017
024: Studies for a new maker space for a personal CNC company
October 31, 2017
017: View from the street for our urban campground project
October 30, 2017
018: Details for our loft renovation in Weehawken
October 28, 2017
017: Tuning up windows in an old car repair shop
October 28, 2017
017: Schematic site plan for our urban campground project
October 28, 2017
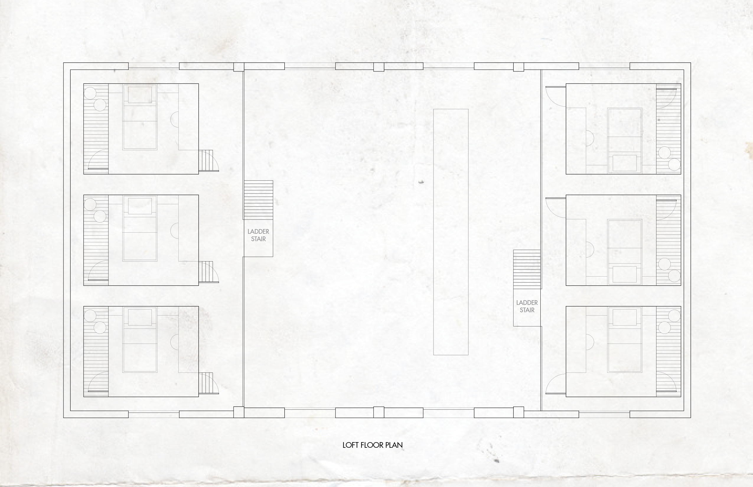
017: Loft floor plan for our urban campground project
October 28, 2017
017: Ground floor plan for our urban campground project
October 25, 2017
010: Stackhouse II second floor plan - doubling the square footage.
October 24, 2017
017: Chapter I set to commence..
October 24, 2017
017: Camping tents becoming spatial for our project in Nantes, FR
October 21, 2017
017: Telling a story...(with apologies to Wes Anderson)
October 14, 2017
017: Turning an old oil pit into a rock garden / desert arroyo
October 14, 2017
018: In progress plan for our loft renovation in Weehawken
October 10, 2017
017: Transforming the relationship to the street
October 10, 2017
000: Zissou townhouse vibes
October 10, 2017
018: New loft project permit set complete
October 10, 2017
017: Testing out some color options for our urban campground mess hall
October 10, 2017
017: Testing out some color options for our urban campground mess hall
October 9, 2017
017: Concept collage for our new urban campground project in Nantes, FR
October 9, 2017
017: Pigeonnaire; a new urban campground experience in Nantes, FR, taking over an old car repair shop
October 8, 2017
017: Dimensioned plans for our camping huts in Nantes, FR
October 6, 2017
017: Collage plan for a workspace test-fit
October 5, 2017
017: Preliminary sketches for an interior garden
October 5, 2017
000: Study, Georges Vantongerloo, 1948
October 4, 2017
017: Inspiration
October 1, 2017
010: Hillsdale, NJ cap cod renovation and addition framing nearing completion
September 27, 2017
017: Working on a concept collage for our new project in Nantes, FR. More details soon!
September 26, 2017
018: Concept sketch for new work in Nantes, France
September 25, 2017
018: Site visit wall drawings
September 25, 2017
009: Site visit: view from the street
September 21, 2017
000: Working Drawing, Maya Lin, 2006
September 21, 2017
011: Construction set to begin for our new residence in Sag Harbor, NY
September 18, 2017
010: Stackhouse II site visit: Doorbell detail
September 15, 2017
000: Casting slabs
September 3, 2017
009: Bergenfield, NJ cape cod addition nearing completion
August 24, 2017
009: Stackhouse One site visit: Old meets new
August 21, 2017
011: Septic permit received for our new residence in Sag Harbor, NY
July 21, 2017
009: Stackhouse I demo complete
July 21, 2017
009: Second floor plan for our renovation in Bergenfield, NJ. Doubling the square footage on this classic Cape Cod!
July 1, 2017
009: Excited to see progress on this cape cod renovation and addition in Bergenfield, NJ
June 20, 2017
009: Gutting the living spaces in this classic Cape Cod to create an open floor plan
June 14, 2017
017: Section through our camping huts in Nantes, FR
June 14, 2017
011: Elevations for our new project in Sag Harbor - window package for pricing
April 17, 2017
008: Neptune City, NJ renovation and porch addition rendering
April 12, 2017
005: Sketch updates for the Lake Keowee House
March 29, 2017
000: Vegetation collage
March 28, 2017
006: Renderings for our California Bungalow Renovation complete. Excited to begin construction soon!
March 27, 2017
005: Sketches for a new house on Lake Keowee in South Carolina
March 6, 2017
000: Terrazzo slabs
February 27, 2017
000: Casting terrazzo tests for a new project on Long Island
February 21, 2017
000: Sketches for a stair
Filter
Project Type
Project Status
Project Year